レジディア目白 9階
物件概要
【マンション】 物件番号:96949847 情報更新日:2025年11月08日 次回更新予定日:2025年11月22日| 所在地 | 東京都豊島区高田2丁目 | ||
|---|---|---|---|
| 交通 | |||
| 間取り/詳細 |
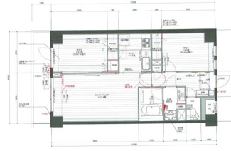
2LDK LDK 16.0帖/洋室 6.0帖/洋室 6.0帖 |
面積/バルコニー面積 | 66.00㎡/- |
| 賃料 | 24.3万円 | 管理費・共益費 | 15,000円 |
| 敷金/礼金/保証金 | 0ヶ月/0ヶ月/0万円 | 償却/敷引 | 0万円/0万円 |
| 更新料 | 1ヶ月 | 敷金積み増し | - |
| 権利金/雑費 | -/- | 駐車場/月額料金 | 無/- [駐車場礼金] |
| 保険加入/料金 | 有/19,000円 | 保険名/保険期間 | 貸主指定保険/2年 |
| 保証人代行義務/利用料 | 必加入/ 初回:月額賃料と管理費(共益費)の合計金額の50% | 保証会社 | その他 |
| 保証会社詳細 | 貸主指定保証会社 | 向き | - |
| 築年月(築年数) | 1999年 1月 (築26年) | 契約期間 | 2年 |
| 種別/構造 | マンション/鉄筋コンクリート | 部屋/所在階/階建 | 901/ 9階/ 10階建 |
| 総戸数 | 162戸 | 現況/入居可能日 | 空家/2025年10月中旬予定 |
| 特優賃 | - | 取引態様/賃貸区分 | 仲介/一般 |
| 物件番号 | 96949847 | 取引条件の有効期限 | 2025年11月22日 |
| 設備条件 |
|
||
| 備考 | 仲介手数料0円物件多数/ご内見は現地待合せ/現地で物件紹介可/他店掲載物件紹介可。※問合せ後すぐにメールのご返信しております。メール確認不可の場合は迷惑メールをご確認下さい。電話番号の入力がオススメ。他店掲載物件もまとめてご案内可能です。現地集合、解散で効率的にご内見。夜間内見、賃料交渉もご相談下さい。仲介手数料0円物件、未公開物件多数。引越し割引、お得な電気プラン等紹介可※費用詳細は募集図面参照 | ||
| 条件(その他) | 鍵交換代:2万2,000円 [高齢者]相談 | ||
| 取扱会社 |
|
||
※地図上に表示される物件の位置は付近住所に所在することを表すものであり、実際の物件所在地とは異なる場合がございます。















